Click vào để biết vị trí, tiện ích, quy hoạch... của dự án
Quy mô phân khu Sông Town - Caraworld Cam Ranh

Phối cảnh phân khu Sông Town.
Phân khu Sông Town được triển khai trên diện tích 52,99ha, chia thành 3 tiểu khu là Ma Rốc, Ả rập và Hy Lạp.
Dự án cung cấp cho thị trường 1.868 căn nhà phố. Cụ thể:

Mặt bằng tổng thể phân khu Sông Town.
Tiểu khu Hy Lạp
- Quy mô: 18,5ha
- Sản phẩm: 685 căn

Mặt bằng tiểu khu Hy Lạp.
Tiểu khu Ma Rốc
- Quy mô: 18,2ha
- Sản phẩm: 673 căn

Mặt bằng tiểu khu Ma Rốc.
Tiểu khu Ả Rập
- Quy mô: 13,3ha
- Sản phẩm: 513 căn

Mặt bằng tiểu khu Ả Rập.
Sản phẩm phân khu Sông Town - Caraworld Cam Ranh

Phối cảnh sản phẩm nhà phố tại phân khu Sông Town.
Số lượng: 1.868 căn nhà phố
Dòng sản phẩm: Pool Townhouse, Riverpool Townhouse và Infinity Townhouse
Diện tích xây dựng: 120m2
Diện tích sàn: 150-170m2
Thiết kế: 3 tầng, 3 phòng ngủ
Đường trước mặt: 15-24m
Đường vỉa hè: 4-5m
Tiện ích: gara ô tô riêng, hồ bơi với 3 dạng gồm hồ bơi riêng, hồ bơi liên hoàn và hồ bơi vô cực…

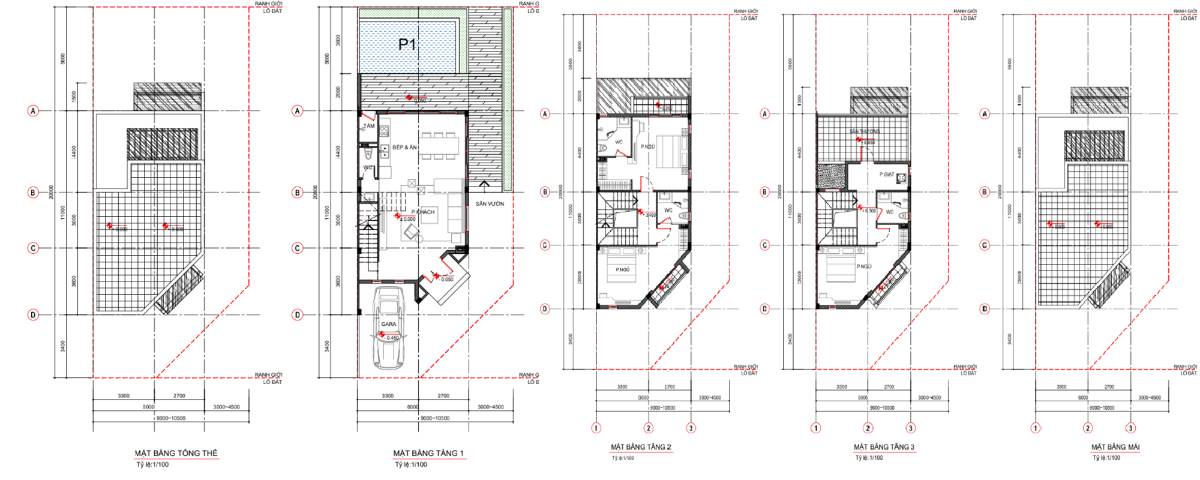
Layout điển hình tiểu khu Hy Lạp.

Layout điển hình tiểu khu Ma Rốc.

Layout điển hình tiểu khu Ả Rập.
Tiện ích phân khu Sông Town - Caraworld Cam Ranh
Phân khu Sông Town được chủ đầu tư tích hợp với hơn 50 tiện ích cả trong nhà lẫn ngoài trời, được phân bổ hợp lý tại 3 tiểu khu nhằm đáp ứng mọi nhu cầu sinh hoạt, giải trí và rèn luyện sức khỏe của cư dân.

Hệ thống tiện ích tại phân khu Sông Town.
- 8 vườn cảnh quan theo chủ đề
- Khu thể thao ngoài trời: sân tennis, sân pickleball
- Chuỗi tiện ích thư giãn tại Relax Center
- Vườn dạo bộ và khu vực trị liệu bằng sỏi
- Phòng game, phòng karaoke và phòng chiếu phim
- Lounge Ả Rập, phòng pilates, clubhouse
- Quảng trường Văn hoá nghệ thuật 10ha
- KN Golf Link…
Pháp lý phân khu Sông Town - Caraworld Cam Ranh
Dự án Caraworld Cam Ranh có tên pháp lý là Khu đô thị nghỉ dưỡng The Lotus Cam Ranh, tên thương mại là Khu phức hợp nghỉ dưỡng và giải trí KN Paradise do Công ty TNHH KN Cam Ranh làm chủ đầu tư.
Ngày 26/8/2016, UBND tỉnh Khánh Hòa ban hành Quyết định số 2539/QĐ-UBND về việc chấp thuận nhà đầu tư Công ty TNHH KN Cam Ranh thực hiện dự án Khu đô thị nghủ dưỡng The Lotus Cam Ranh.
Ngày 20/5/2016, Sở Kế hoạch và Đầu tư tỉnh Khánh Hòa cấp Giấy chứng nhận đăng ký đầu tư số 6722608513 và chứng nhận thay đổi lần 01 vào ngày 29/10/2019 cho Công ty TNHH KN Cam Ranh đối với dự án Khu phức hợp Nghỉ dưỡng và Giải trí KN Paraside tại khu vực Bãi Dài, bán đảo Cam Ranh, phường Cam Nghĩa, TP.Cam Ranh, tỉnh Khánh Hòa (Khu đô thị nghỉ dưỡng The Lotus Cam Ranh).
Ngày 14/6/2016, UBND tỉnh Khánh Hòa ban hành Quyết định số 1678/QĐ-UBND về việc giao đất và cho thuê đất để Công ty TNHH KN Cam Ranh thực hiện dự án Khu đô thị nghỉ dưỡng The Lotus Cam Ranh.
Ngày 12/9/2019, UBND tỉnh Khánh Hòa ban hành Quyết định số 2871/QĐ-UBND về việc phê duyệt điều chỉnh Quy hoạch chi tiết (tỷ lệ 1/500) Khu đô thị nghỉ dưỡng The Lotus Cam Ranh, TP.Cam Ranh.
Ngày 11/11/2021, Sở Xây dựng tỉnh Khánh Hòa ban hành văn bản số 3599/SXD-QLN về việc bán nhà ở hình thành tương lai tại dự án Khu phức hợp nghỉ dưỡng và giải trí KN Paraside, TP.Cam Ranh.
Tiến độ phân khu Sông Town - Caraworld Cam Ranh
Phân khu Sông Town chính thức khởi công ngày 28/11/2024. Hiện phân khu đang trong giai đoạn thi công hầm móng.
Về tổng thể dự án Caraworld Cam Ranh, hiện dự án đã hoàn thành hệ thống tiện ích nội khu cùng nhiều hạng mục quan trọng như công viên Cát Tường 0,9ha, beach club (giai đoạn 1), sân golf…


Tiến độ phân khu Sông Town.
Thông tin chủ đầu tư phân khu Sông Town - Caraworld Cam Ranh
Phân khu Sông Town là phân khu thuộc dự án Caraworld Cam Ranh do Công ty TNHH KN Cam Ranh, thành viên của công ty cổ phần đầu tư kinh doanh Golf Long Thành làm chủ đầu tư.
Doanh nghiệp được thành lập vào 23/1/2015, với vốn điều lệ ban đầu là 540 tỷ đồng. Đến tháng 4/2023, vốn điều lệ đã tăng lên 7.900 tỷ đồng. Công ty này do Công ty Cổ phần Đầu tư Kinh doanh Golf Long Thành nắm giữ 90% cổ phần, phần còn lại do ông Lê Văn Kiểm (Chủ tịch HĐQT) nắm giữ 54 tỷ đồng (tương đương 10%). Người đại diện pháp luật là bà Trần Cầm Nhung.
Tổng công ty CP đầu tư và kinh doanh Golf Long Thành, chủ yếu hoạt động trong 4 lĩnh vực chính như: Kinh doanh dịch vụ sân Golf, du lịch, nhà hàng, khách sạn, bất động sản và khai thác khoáng sản.
Thông tin nhanh phân khu Sông Town - Caraworld Cam Ranh
| Dự án: Phân khu Sông Town – Caraworld Cam Ranh | Tổng diện tích: 52,99ha |
| Vị trí: phường Cam Nghĩa, TP.Cam Ranh, tỉnh Khánh Hòa | Tổng vốn đầu tư: |
| Loại hình: nhà phố | Năm khởi công: 28/11/2024 |
| Chủ đầu tư: Công ty TNHH KN Cam Ranh | Năm hoàn thành: Quý II/2026 |
Đăng ký kênh Youtube CafeLand để theo dõi các video bất động sản mới nhất! - Mua bán cho thuê dự án
- Tin rao bán Bất Động Sản Nghỉ Dưỡng Phân khu Sông Town
- Tin rao cho thuê Bất Động Sản Nghỉ Dưỡng Phân khu Sông Town
trên toàn quốc và một số ngân hàng
để hỗ trợ bạn tìm một ngôi nhà phù hợp.
| Thông Tin chi tiết Dự Án | ||||||||||||||||||||||||||||||||||||
|
| |||||||||||||||||||||||||||||||||||
- Tiềm lực tài chính, uy tín và thương hiệu chủ đầu tư5
- Vị trí thuận tiện, tiềm năng phát triển trong tương lai.5
- Tiện ích dự án, thiết kế5
- Pháp lý dự án đầy đủ, minh bạch, đáng tin cậy5
- Mức giá bán hợp lý5
- Tiềm năng tăng giá tương lai5
Giá dự án cùng khu vực
Dự án xung quanh
