Click vào để biết vị trí, tiện ích, quy hoạch... của dự án
Quy mô dự án Lumi Prestige - Lumi Hanoi

Phối cảnh phân khu Lumi Prestige
| Quy mô xây dựng | 2 tòa cao 30 tầng |
| Số lượng sản phẩm | 878 căn hộ |
Quy mô phân khu Lumi Prestige

Vị trí Lumi Prestige trong dự án Lumi Hanoi

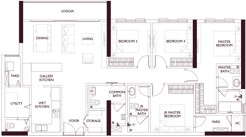
Mặt bằng tầng điển hình phân khu Lumi Prestige
Sản phẩm dự án Lumi Prestige - Lumi Hanoi
Căn hộ 1 phòng ngủ
Diện tích: 42,2m2

Thiết kế căn hộ 1 phòng ngủ
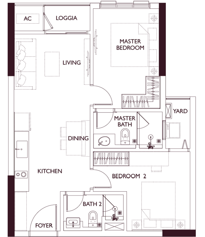
Căn hộ 2 phòng ngủ
Diện tích: 53,8-71,3m2


Thiết kế căn hộ 2 phòng ngủ
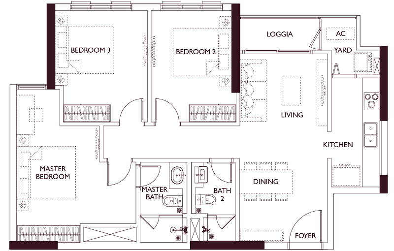
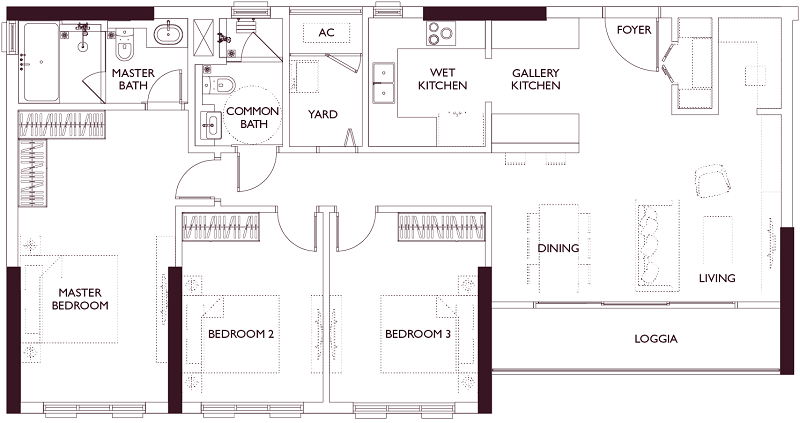
Căn hộ 3 phòng ngủ
Diện tích: 85,8-117,1m2


Thiết kế căn hộ 3 phòng ngủ
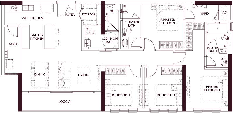
Căn hộ 4 phòng ngủ
Diện tích: 127,5-136m2


Thiết kế căn hộ 4 phòng ngủ
Tiện ích dự án Lumi Prestige - Lumi Hanoi
- Đài phun nước Ánh Sáng Phương Bắc
- Chòi thư giãn Aurora
- Bể bơi ánh sao
- Chòi BBQ Aurora
- Góc học tập và thư viện
- Phòng gym, phòng pilates, phòng yoga
- Bể sục Jacuzzi riêng tư
- Sảnh tiệc và rượu vang
- Khu phố thương mại Stella
- Chòi nghỉ ngân hà
- Hồ Lân Tinh
- Chòi hoàng hôn
- Nông trại chân mây
- Sân tập đa năng
- Sân tennis…


Phối cảnh tiện ích tại dự án
Pháp lý dự án Lumi Prestige - Lumi Hanoi
Lumi Prestige là giai đoạn 2 của dự án Lumi Hanoi.
Được biết, Lumi Hanoi là phân khu thuộc Vinhomes Smart City được Công ty TNHH Thương mại và Phát triển Kinh doanh Ánh Sao nhận chuyển nhượng từ Công ty Đầu tư Xây dựng Thái Sơn, một thành viên thuộc Vingroup vào cuối năm 2021.
Tiến độ dự án Lumi Prestige - Lumi Hanoi
Cập nhật tháng 9/2025, Lumi Prestige đã xây tới tầng 26 và 27, đồng thời đang tiến hành lắp kính.
Giá bán tham khảo: 71-79,8 triệu đồng/m2

Tiến độ dự án cập nhật tháng 9/2025
Thông tin chủ đầu tư dự án Lumi Prestige - Lumi Hanoi
Chủ đầu tư dự án Lumi Prestige là Công ty TNHH Thương mại và Phát triển Kinh doanh Ánh Sao (thuộc tập đoàn CapitaLand) hoạt động từ năm 2015, địa chỉ trụ sở là phường Xuân Phương, TP.Hà Nội. Doanh nghiệp hoạt động chính trong lĩnh vực kinh doanh bất động sản.
Thông tin nhanh dự án Lumi Prestige - Lumi Hanoi
| Dự án: Lumi Prestige | Tổng diện tích: |
| Vị trí: Đại lộ Thăng Long, phường Tây Mỗ, TP.Hà Nội | Tổng vốn đầu tư: |
| Loại hình: Căn hộ | Năm khởi công: |
| Chủ đầu tư: Công ty TNHH Thương mại và Phát triển Kinh doanh Ánh Sao (thuộc tập đoàn CapitaLand) | Năm hoàn thành: |
Đăng ký kênh Youtube CafeLand để theo dõi các video bất động sản mới nhất! - Mua bán cho thuê dự án
- Tin rao bán Căn hộ chung cư Lumi Prestige
- Tin rao cho thuê Căn hộ chung cư Lumi Prestige
-
Lumi Hanoi: Dự án chung cư cao cấp tại Hà Nội
Dự án Lumi Hanoi có vị trí tại mặt đường đại lộ Thăng Long, quận Nam Từ Liêm, thủ đô Hà Nội. Đại lộ Thăng Long là trục giao thông huyết mạch của thủ đô nối với các tỉnh phía tây Hà Nội. ...
-
Lumi Elite: Phân khu căn hộ cuối cùng của Lumi Hanoi
Lumi Elite là giai đoạn 3 và cũng là phân khu cuối cùng của dự án Lumi Hanoi, tọa lạc tại phường Tây Mỗ, quận Nam Từ Liêm, Hà Nội. Từ dự án, cư dân có thể di chuyển vào trung tâm thành phố chỉ 25 phút. Đặc biệt, dự án chỉ cách Trung tâm Hội nghị Quốc...
trên toàn quốc và một số ngân hàng
để hỗ trợ bạn tìm một ngôi nhà phù hợp.
| Thông Tin chi tiết Dự Án | |||||||||||||||||||||||||||||||||||||||
|
| ||||||||||||||||||||||||||||||||||||||
- Tiềm lực tài chính, uy tín và thương hiệu chủ đầu tư4
- Vị trí thuận tiện, tiềm năng phát triển trong tương lai.3.5
- Tiện ích dự án, thiết kế3.5
- Pháp lý dự án đầy đủ, minh bạch, đáng tin cậy4.5
- Mức giá bán hợp lý4
- Tiềm năng tăng giá tương lai4
Giá dự án cùng khu vực
Dự án xung quanh


