Click vào để biết vị trí, tiện ích, quy hoạch... của dự án
Quy mô dự án Nam Long TAT Bình Dương

Phối cảnh dự án khu dân cư Nam Long TAT Bàu Bàng, Bình Dương
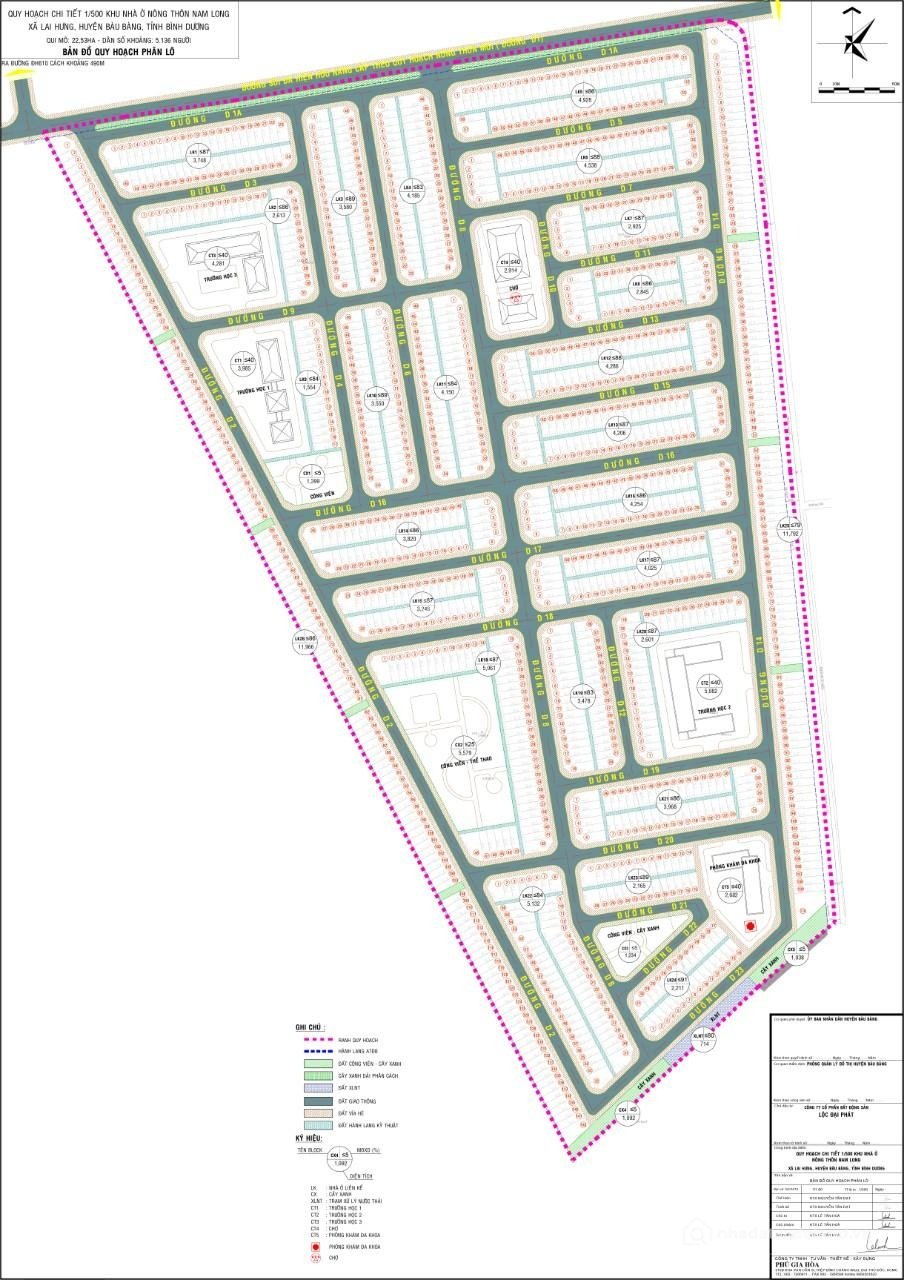
Dự án đất nền Nam Long TAT Bình Dương dự kiến cung ứng 1.300 lô đất xây nhà phố trên nền đất rộng khoảng 23ha. Diện tích từng nền đất dự án Nam Long TAT dao động từ 75 – 100m2.

Mặt bằng tổng thể dự án khu dân cư Nam Long TAT Bàu Bàng, tỉnh Bình Dương
Hạ tầng nội khu dự án được chủ đầu tư triển khai gồm hệ thống cấp, thoát nước âm, cây xanh, khu vỉa hè lát gạch cùng tuyến đường nội khu trải nhựa rộng 12 – 32m.
Ngoài ra, dự án còn quy hoạch mảng xanh tạo không gian thoáng đãng và thư giãn cho cư dân với cụm công viên 1,5ha và khu trường học, trạm y tế, chợ được xây dựng đồng bộ.
Thông tin dự án Nam Long TAT Bình Dương từ CafeLand
Công ty Cổ phần Bất động sản Lộc Đại Phát là chủ đầu tư triển khai dự án.
Theo khảo sát thị trường, giá bán mỗi lô hoàn thiện hạ tầng bên trong dự án Nam Long TAT khoảng từ 450 triệu đồng/nền.
Thông tin nhanh dự án đất nền Nam Long TAT Bình Dương
| Dự án: Khu dân cư Nam Long TAT | Tổng diện tích: 23ha |
| Vị trí: Xã Lai Uyên, liền kề xã Bến Cát, thuộc huyện Bàu Bàng, tỉnh Bình Dương | Tổng vốn đầu tư: |
| Loại hình: Đất nền | Ngày khởi công: |
| Chủ đầu tư: Công ty Cổ phần Bất động sản Lộc Đại Phát | Năm hoàn thành: |
- Mua bán cho thuê dự án
- Tin rao bán Khu Đô Thị Khu dân cư Nam Long TAT
- Tin rao cho thuê Khu Đô Thị Khu dân cư Nam Long TAT
trên toàn quốc và một số ngân hàng
để hỗ trợ bạn tìm một ngôi nhà phù hợp.
| Thông Tin chi tiết Dự Án | ||||||||||||||||||||||||||||||||
|
| |||||||||||||||||||||||||||||||
- Tiềm lực tài chính, uy tín và thương hiệu chủ đầu tư5
- Vị trí thuận tiện, tiềm năng phát triển trong tương lai.5
- Tiện ích dự án, thiết kế5
- Pháp lý dự án đầy đủ, minh bạch, đáng tin cậy5
- Mức giá bán hợp lý5
- Tiềm năng tăng giá tương lai5
Đăng ký kênh Youtube CafeLand để theo dõi các video bất động sản mới nhất!
Giá dự án cùng khu vực
Dự án xung quanh
