Click vào để biết vị trí, tiện ích, quy hoạch... của dự án
Ranh giới và kết nối liên vùng của KCN VSIP Nghệ An 2
Khu vực nghiên cứu dự án thuộc thuộc Khu kinh tế Đông Nam, xã Tân Châu (xã Diễn Thọ, Diễn Phú, Diễn Lộc, huyện Diễn Châu cũ), tỉnh Nghệ An, cụ thể:
- Phía Bắc dự án giáp đường N1 thuộc Khu Kinh tế Đông Nam Nghệ An;
- Phía Nam và phía Đông giáp khu dân cư các xã Diễn Phú, Diễn Lộc;
- Phía Tây giáp đất nông nghiệp xã Diễn Lợi.
Kết nối vùng:
- Cách khu công nghiệp VSIP Nghệ An I khoảng 35km
- Cách thành phố Vinh khoảng 37km
- Cách cảng Cửa Lò khoảng 23km
- Cách cảng Nghi Sơn khoảng 63km
- Cách sân bay Vinh khoảng 30km
- Cách thành phố Hà Nội khoảng 265km
- Cách thành phố Hải Phòng khoảng 310km.
Quy mô dự án KCN VSIP Nghệ An 2

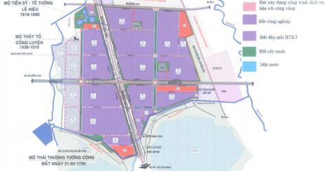
Mặt bằng KCN VSIP Nghệ An 2
| Tổng diện tích | 500ha |
| Ngành nghề thu hút | - Cơ khí chế tạo phụ tùng, sản xuất các - Thiết bị cơ khí chính xác, lắp ráp kỹ thuật số - Chế biến nông, lâm, thủy sản - Sản xuất hàng tiêu dùng như dệt may, giày da - Điện tử, điện lạnh cao cấp, thiết bị điện, đồ điện chất lượng cao |
Quy mô KCN VSIP Nghệ An 2
Hệ thống cơ sở hạ tầng KCN VSIP Nghệ An 2
Hệ thống cấp điện
Trạm biến áp 80 MVA
Hệ thống cấp nước
Công suất 24.000 m3/ngày.đêm
Hệ thống xử lý nước thải
Công suất 17.000 m3/ngày.đêm
Hệ thống thoát nước mưa
Hệ thống thoát nước của dự án được dẫn lưu vực phía Nam đến quy hoạch, tại đây chia thành 3 hướng thoát: Thoát về phía Tây - Bắc; thoát về phía Đông ra kênh Nhà Lê; thoát về phía Bắc ra kênh Khe Ve.
Pháp lý KCN VSIP Nghệ An 2
Ngày 8/2/2023, Thủ tướng Chính phủ ban hành Quyết định số 57/QĐ-TTg về việc chủ trương đầu tư dự án KCN Thọ Lộc giai đoạn 1.
Ngày 30/10/2024, UBND tỉnh Nghệ An ban hành Quyết định số 390 /QÐ-UBND về việc cho chủ đầu tư thuê đất (đợt 2) tại xã Diễn Thọ để thực hiện dự án đầu tư xây dựng và kinh doanh hạ tầng Khu công nghiệp Thọ Lộc (giai đoạn 1) với diện tích 1.536.085,9m2.
Tiến độ KCN VSIP Nghệ An 2
KCN VSIP Nghệ An 2 chính thức khởi công ngày 29/8/2023.
Đến tháng 1/2026, công tác giải phóng mặt bằng đã hoàn thành 499,81ha, tương đương 99,96%.
Khu công nghiệp đã thu hút 5 dự án với tổng diện tích 81,69ha, đạt tỷ lệ sử dụng 21,5%, với tổng vốn đầu tư hơn 960 triệu USD từ các nhà đầu tư thứ cấp.
Giá thuê dự kiến KCN VSIP Nghệ An 2
- Giá thuê cơ sở hạ tầng: 75 USD/m2 (chưa bao gồm VAT)
- Giá thuê đất: Theo quy định của Nhà nước.
- Đơn giá xử lý nước thải và rác thải: Theo đơn giá của nhà cung cấp
- Giá nước sạch: Theo đơn giá của nhà cung cấp
- Cước viễn thông: Theo đơn giá của nhà cung cấp
- Giá điện: Theo đơn giá của nhà cung cấp
Lưu ý: Các mức phí trên chỉ mang tính tham khảo và có thể thay đổi theo chính sách của chủ đầu tư và thời điểm cụ thể.
Thông tin chủ đầu tư dự án KCN VSIP Nghệ An 2
Chủ đầu tư dự án là Công ty TNHH VSIP Nghệ An hoạt động từ năm 2015, địa chỉ trụ sở là số 8, đường Hữu Nghị, khu công nghiệp VSIP Nghệ An, xã Hưng Nguyên, tỉnh Nghệ An. Người đại diện pháp luật là Teng Wei Hong. Doanh nghiệp hoạt động chính trong lĩnh vực kinh doanh bất động sản, quyền sử dụng đất thuộc chủ sở hữu, chủ sử dụng hoặc đi thuê.
Thông tin nhanh dự án KCN VSIP Nghệ An 2
| Dự án: KCN VSIP Nghệ An 2 | Ngày khởi công: 29/8/2023 |
| Vị trí: Khu kinh tế Đông Nam, xã Tân Châu, tỉnh Nghệ An | Thời hạn vận hành: 2023 - 2073 |
| Tổng diện tích: 500ha | Tổng vốn đầu tư: 3.826 tỷ đồng (tương đương 164,6 triệu USD) |
| Chủ đầu tư: Công ty TNHH VSIP Nghệ An | Tỷ lệ lấp đầy: 21,5% (tháng 1/2026) |
Đăng ký kênh Youtube CafeLand để theo dõi các video bất động sản mới nhất!
- Mua bán cho thuê dự án
- Tin rao bán Khu công nghiệp Khu công nghiệp VSIP Nghệ An 2
- Tin rao cho thuê Khu công nghiệp Khu công nghiệp VSIP Nghệ An 2
trên toàn quốc và một số ngân hàng
để hỗ trợ bạn tìm một ngôi nhà phù hợp.
| Thông Tin chi tiết Dự Án | ||||||||||||||||||||||||||||||||
|
|
|||||||||||||||||||||||||||||||
-
Tiềm lực tài chính, uy tín và thương hiệu chủ đầu tư5
-
Vị trí thuận tiện, tiềm năng phát triển trong tương lai.5
-
Tiện ích dự án, thiết kế5
-
Pháp lý dự án đầy đủ, minh bạch, đáng tin cậy5
-
Mức giá bán hợp lý5
-
Tiềm năng tăng giá tương lai5
Giá dự án cùng khu vực
Dự án xung quanh
