Click vào để biết vị trí, tiện ích, quy hoạch... của dự án
Ranh giới và kết nối liên vùng của KCN Văn Giang - giai đoạn 1 Hưng Yên
Phạm vi lập quy hoạch KCN Lưu Bình thuộc địa giới hành chính xã Nghĩa Trụ, tỉnh Hưng Yên. Cụ thể:
- Phía Bắc giáp đường quy hoạch lộ giới 51m và dân cư hiện trạng xã Nghĩa Trụ
- Phía Nam giáp kênh Tam Bá Hiển
- Phía Đông giáp ranh giới xã Hoàn Long và sông Bắc Hưng Hải
- Phía Tây giáp đất nông nghiệp xã Nghĩa Trụ
Kết nối liên vùng
- Cách sân bay Nội Bài: 33km
- Cách trung tâm TP.Hà Nội: khoảng 18km
- Cách cảng Hải Phòng: hơn 100km

Vị trí thực hiện KCN Văn Giang - giai đoạn 1
Quy mô KCN Văn Giang - giai đoạn 1 Hưng Yên
| Tổng diện tích | 272,76ha - Giai đoạn 1: 203,55ha - Giai đoạn 2: 69,21ha |
| Quy hoạch sử dụng đất (giai đoạn 1) | - Đất sản xuất công nghiệp, kho bãi: 142,68ha - Đất khu dịch vụ: 11,82ha - Đất công trình hạ tầng kỹ thuật: 4,29ha - Đất cây xanh: 18,93ha - Đất giao thông: 19,77ha |
| Tổng vốn đầu tư | 3.320 tỷ đồng |
Quy mô KCN Văn Giang - giai đoạn 1 Hưng Yên
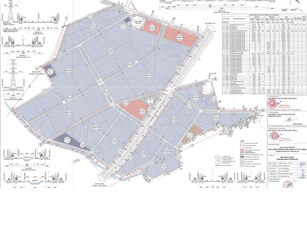
Bản đồ quy hoạch sử dụng đất KCN Văn Giang - giai đoạn 1
Định hướng ngành sản xuất
| Ngành khuyến khích | - Công nghiệp cơ điện tử, chíp bán dẫn, chế tạo phần mềm, sản phẩm công nghệ số, trí tuệ nhân tạo, sản xuất robot - Điện tử, máy tính và sản phẩm quang học - Sản xuất sản phẩm từ cao su và Plastic - Sản xuất thuốc, hóa dược và dược liệu - Sản xuất thiết bị, dụng cụ y tế, nha khoa, chỉnh hình và phục hồi chức năng - Vận tải, kho bãi… |
Hệ thống cơ sở hạ tầng KCN Văn Giang - giai đoạn 1 Hưng Yên
Hệ thống cấp điện
Nguồn cấp điện ngắn hạn dự kiến lấy từ các đường dây trung thế hiện trạng gần KCN. Bổ sung nâng công suất thêm trạm biến áp 110kV Vĩnh Khúc lên thêm 2x63MVA thành 4x63MVA để bảo đảm cấp điện cho KCN.
Hệ thống xử lý nước thải
Đầu tư xây dựng và vận hành 01 trạm xử lý nước thải tập trung công suất
9.000 m³/ngày với công nghệ xử lý hóa lý và sinh học, công đoạn xử lý sinh học được thành 03 mô đun (công suất 3.000 m³/ngày đêm/mô đun) để xử lý toàn bộ nước thải phát sinh tại KCN, đảm bảo nước thải sau xử lý thải ra kênh Tam Bá Hiển.
Hệ thống cấp nước
Nguồn nước cấp cho KCN Văn Giang - Giai đoạn 1 là Nhà máy nước sạch Mỹ Văn do Công ty Cổ phần đầu tư và xây dựng Việt Thanh quản lý.
Hệ thống hạ tầng viễn thông
- Để đáp ứng nhu cầu cung cấp dịch vụ viễn thông cho toàn bộ KCN, bố trí một tổng đài với dung lượng đầu số thuê bao theo bảng tính nhu cầu đặt tại khu trung tâm điều hành.
- Toàn bộ khu sẽ được lắp đặt tổng đài riêng hoặc các nhà cung cấp mạng cam kết đáp ứng yêu cầu thông tin liên lạc của khu.
Sơ đồ không gian cảnh quan KCN Văn Giang - giai đoạn 1
Pháp lý KCN Văn Giang - giai đoạn 1 Hưng Yên
Ngày 05/12/2025, Ban Quản lý các KCN tỉnh Hưng Yên ra Quyết định số 199/QĐ-BQL về việc phê duyệt Đồ án Quy hoạch phân khu xây dựng tỷ lệ 1/2000 KCN Văn Giang.
Ngày 05/12//2025, UBND tỉnh Hưng Yên ban hành Quyết định số 55/QĐ-UBND quyết định chấp thuận chủ trương đầu tư đồng thời chấp thuận nhà đầu tư KCN Văn Giang là Công ty TNHH Đầu tư Khu công nghiệp Lưỡng Dụng Văn Giang.
Ngày 18/12/2025, Ban Quản lý các KCN tỉnh Hưng Yên ra Quyết định số 216/QĐ-BQL về việc phê duyệt điều chỉnh quy hoạch phân khu xây dựng tỷ lệ 1/2000 KCN Văn Giang.
Tiến độ KCN Văn Giang - giai đoạn 1 Hưng Yên
Dự kiến dự án sẽ được thực hiện từ quý II/2026 đến quý I/2029.
Thông tin chủ đầu tư KCN Văn Giang - giai đoạn 1 Hưng Yên
Công ty TNHH Đầu tư Khu công nghiệp Lưỡng Dụng Văn Giang được thành lập ngày 06/10/2025, có trụ sở đặt tại Biệt thự số 33, dãy San hô 13, Khu đô thị Vinhomes Oceanpark 2, xã Nghĩa Trụ, tỉnh Hưng Yên.
Người đại diện pháp luật tại thời điểm tháng 3/2026 là ông Nguyễn Vũ Hoàng An.
Doanh nghiệp hoạt động chính trong ngành Kinh doanh bất động sản; Dịch vụ quản lý bất động sản; Quản lý vận hành nhà chung cư.
Thông tin nhanh KCN Văn Giang - giai đoạn 1 Hưng Yên
| Dự án: KCN Văn Giang - giai đoạn 1 Hưng Yên | Ngày khởi công: |
| Vị trí: xã Nghĩa Trụ, tỉnh Hưng Yên | Thời gian vận hành: 2025 - 2075 |
| Tổng diện tích: 203,55ha | Tổng vốn đầu tư: 3.320 tỷ đồng |
| Chủ đầu tư: Công ty TNHH Đầu tư Khu công nghiệp Lưỡng Dụng Văn Giang | Tỷ lệ lấp đầy: |
Đăng ký kênh Youtube CafeLand để theo dõi các video bất động sản mới nhất!
- Mua bán cho thuê dự án
- Tin rao bán Khu công nghiệp Khu công nghiệp Văn Giang - giai đoạn 1
- Tin rao cho thuê Khu công nghiệp Khu công nghiệp Văn Giang - giai đoạn 1
trên toàn quốc và một số ngân hàng
để hỗ trợ bạn tìm một ngôi nhà phù hợp.
| Thông Tin chi tiết Dự Án | ||||||||||||||||||||||||||||||||
|
|
|||||||||||||||||||||||||||||||
-
Tiềm lực tài chính, uy tín và thương hiệu chủ đầu tư5
-
Vị trí thuận tiện, tiềm năng phát triển trong tương lai.5
-
Tiện ích dự án, thiết kế5
-
Pháp lý dự án đầy đủ, minh bạch, đáng tin cậy5
-
Mức giá bán hợp lý5
-
Tiềm năng tăng giá tương lai5
Giá dự án cùng khu vực
Dự án xung quanh
