Click vào để biết vị trí, tiện ích, quy hoạch... của dự án
Ranh giới và kết nối liên vùng của KCN Cát Lái 2 TP.HCM
Khu vực nghiên cứu dự án nằm trên đường Nguyễn Thị Định, phường Cát Lái (phường Thạnh Mỹ Lợi, TP.Thủ Đức cũ), TP.HCM, cụ thể:
- Phía Tây Bắc giáp đường Vành đai phía Đông
- Phía Đông Bắc giá đường Liên tỉnh lộ 25B
- Phía Nam giáp đường A và khu công nghiệp Cảng Sài Gòn
- Phía Đông Nam giáp cụm công nghiệp địa phương
Kết nối vùng:
- Cách đường cao tốc Long Thành - Dầu Giây khoảng 3km
- Cách ga Sài Gòn khoảng 13km
- Cách sân bay Tân Sơn Nhất khoảng 19km
- Cách cảng Cát Lái khoảng 0,5km
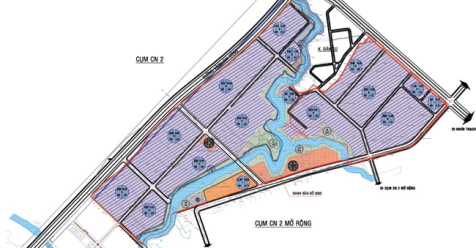
Quy mô dự án KCN Cát Lái 2 TP.HCM

Bản đồ quy hoạch KCN Cát Lái 2
| Tổng diện tích | 136,95ha |
| Quy hoạch sử dụng đất | - Đất nhà máy, kho tàng: 86,97ha - Đất công trình hành chính, dịch vụ: 4,81ha - Đất các khu kỹ thuật: 1,46ha - Đất cây xanh mặt nước: 23,95ha - Đất giao thông: 16,59ha |
| Ngành nghề | - Cơ khí chế tạo máy - Điện tử, công nghệ thông tin - Hóa dược, thảo dược, thuốc y tế - Hóa chất công nghiệp nhựa - Cao su kỹ thuật cao - Vật liệu xây dựng - Trang trí nội thất - Dụng cụ thể dục thể thao |
Quy mô KCN Cát Lái 2
Hệ thống cơ sở hạ tầng KCN Cát Lái 2 TP.HCM
Hệ thống cấp điện
Nguồn cấp điện cho khu quy hoạch được lấy từ trạm hiện hữu 110/15-22KVCát Lái. Đồng thời xây dựng mới 3 trạm biến áp phân phối 15-22/0,4KV với dung lượng 100KVA để phục vụ chiếu sáng giao thông, dùng kiểu trạm phù họp mỹ quan.
Hệ thống cấp nước
Sử dụng nguồn nước máy thành phố, dựa vào các tuyến ống cấp nước 0600 trên đường Nguyễn Thị Định thuộc hệ thống nhà máy nước Thủ Đức.
Hệ thống xử lý nước thải
Nhà máy xử lý nước thải tập trung với công suất xử lý 6.097 m3/ngày.đêm.
Hệ thống viễn thông
Hệ thống viễn thông đạt tiêu chuẩn quốc tế, sãn sàng đáp ứng nhu cầu thông tin liên lạc, dữ liệu tốc độ cao.
Pháp lý dự án KCN Cát Lái 2 TP.HCM
Khu công nghiệp Cát Lái bắt đầu hoạt động từ năm 2003. Đến ngày 30/9/2013, UBND TP.HCM ban hành Quyết định số 5393/QĐ-UBND phê duyệt điều chỉnh quy hoạch chi tiết 1/2.000 Khu công nghiệp Cát Lái cụm 2.
Tiến độ dự án KCN Cát Lái 2 TP.HCM
Hiện tại, KCN Cát Lái 2 đã đi vào hoạt động với tỷ lệ lấp đầy 100%.

KCN Cát Lái 2 nhìn từ trên cao
Giá thuê dự kiến KCN Cát Lái 2 TP.HCM
- Giá thuê: Đã cho thuê hết đất công nghiệp
- Giá cung cấp điện: Các doanh nghiệp sẽ ký Hợp đồng trực tiếp với Công ty Điện lực Thành phố Thủ Đức
- Giá cung cấp nước: 17.595 đồng/m3
Thông tin chủ đầu tư dự án KCN Cát Lái 2 TP.HCM
Chủ đầu tư dự án KCN Cát Lái 2 là Công ty TNHH MTV Dịch vụ công ích Quận 2 được thành lập theo Quyết định số 3740 ĐKDN/QĐTL ngày 10/8/2010 của UBND TP.HCM, là Doanh nghiệp Nhà nước hoạt động trên các lĩnh vực hoạt động công ích như quản lý, duy tu, bảo dưỡng hệ thống công trình hạ tầng kỹ thuật đô thị theo phân cấp...
Địa chỉ trụ sở đặt tại 936 Nguyễn Thị Định, phường Cát Lái, TP.HCM. Người đại diện pháp luật là ông Lê Ngọc Thạch.
Thông tin nhanh dự án KCN Cát Lái 2 TP.HCM
| Dự án: KCN Cát Lái 2 | Ngày khởi công: |
| Vị trí: Đường Nguyễn Thị Định, phường Cát Lái, TP.HCM. | Thời hạn vận hành: 2003 - 2053 |
| Tổng diện tích: 136,95ha | Tổng vốn đầu tư: |
| Chủ đầu tư: Công ty TNHH MTV Dịch vụ công ích Quận 2 | Tỷ lệ lấp đầy: 100% |
Đăng ký kênh Youtube CafeLand để theo dõi các video bất động sản mới nhất!
- Mua bán cho thuê dự án
- Tin rao bán Khu công nghiệp Khu công nghiệp Cát Lái 2
- Tin rao cho thuê Khu công nghiệp Khu công nghiệp Cát Lái 2
trên toàn quốc và một số ngân hàng
để hỗ trợ bạn tìm một ngôi nhà phù hợp.
| Thông Tin chi tiết Dự Án | ||||||||||||||||||||||||||||||||
|
|
|||||||||||||||||||||||||||||||
-
Tiềm lực tài chính, uy tín và thương hiệu chủ đầu tư5
-
Vị trí thuận tiện, tiềm năng phát triển trong tương lai.5
-
Tiện ích dự án, thiết kế5
-
Pháp lý dự án đầy đủ, minh bạch, đáng tin cậy5
-
Mức giá bán hợp lý5
-
Tiềm năng tăng giá tương lai5
Giá dự án cùng khu vực
Dự án xung quanh
