Click vào để biết vị trí, tiện ích, quy hoạch... của dự án
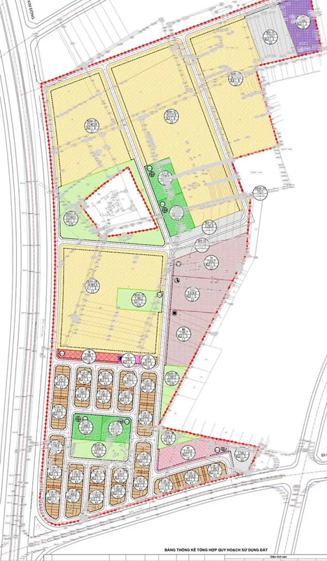
Quy mô dự án nhà ở xã hội phường Phố Hiến Hưng Yên

Phối cảnh dự án nhà ở xã hội phường Phố Hiến
| Tổng diện tích | 31,1ha |
| Quy mô xây dựng | 25 tòa cao 9 tầng 1 tầng hầm |
| Số lượng sản phẩm | 4.400 căn hộ |
| Quy mô dân số | Hơn 9.740 người |
Quy mô dự án nhà ở xã hội phường Phố Hiến

Sản phẩm dự án nhà ở xã hội phường Phố Hiến Hưng Yên
Dự án cung cấp khoảng 4.400 căn hộ nhà ở xã hội.
Ngoài ra dự án còn dành 3,1ha đất xây dựng nhà ở thương mại thấp tầng cao 4 tầng.
Tiện ích dự án nhà ở xã hội phường Phố Hiến Hưng Yên
- Công viên
- Công trình văn hóa, y tế
- Trường học liên cấp
- Khu thể dục thể thao
- Bãi đỗ xe...
Pháp lý dự án nhà ở xã hội phường Phố Hiến Hưng Yên
Dự án nằm trong phạm vi ranh giới đồ án Quy hoạch tỷ lệ 1/2.000 phân khu đô thị Đông sông Điện Biên (Phân khu D) đã được UBND tỉnh phê duyệt tại Quyết định số 789/QĐ-UBND ngày 29/8/2025.
Tiến độ dự án nhà ở xã hội phường Phố Hiến Hưng Yên
Dự án chính thức khởi công ngày 19/12/2025.
Thông tin chủ đầu tư dự án nhà ở xã hội phường Phố Hiến Hưng Yên
Chủ đầu tư dự án nhà ở xã hội phường Phố Hiến là Công ty cổ phần Vinhomes hoạt động từ năm 2008, địa chỉ trụ sở là Tòa nhà Văn phòng Symphony, đường Chu Huy Mân, Khu đô thị Vinhomes Riverside, phường Phúc Lợi, TP.Hà Nội. Người đại diện pháp luật là ông Đặng Minh Hải. Doanh nghiệp hoạt động chính trong lĩnh vực kinh doanh bất động sản, quyền sử dụng đất thuộc chủ sở hữu, chủ sử dụng hoặc đi thuê.
Thông tin nhanh dự án nhà ở xã hội phường Phố Hiến Hưng Yên
| Dự án: Nhà ở xã hội phường Phố Hiến | Tổng diện tích: 31,1ha |
| Vị trí: Phường Phố Hiến, tỉnh Hưng Yên | Tổng vốn đầu tư: Khoảng 6.000 tỷ đồng |
| Loại hình: Căn hộ, nhà liền kề | Năm khởi công: 19/12/2025 |
| Chủ đầu tư: Công ty cổ phần Vinhomes | Năm hoàn thành: |
Đăng ký kênh Youtube CafeLand để theo dõi các video bất động sản mới nhất!
- Mua bán cho thuê dự án
- Tin rao bán Nhà ở xã hội Dự án nhà ở xã hội phường Phố Hiến Hưng Yên
- Tin rao cho thuê Nhà ở xã hội Dự án nhà ở xã hội phường Phố Hiến Hưng Yên
trên toàn quốc và một số ngân hàng
để hỗ trợ bạn tìm một ngôi nhà phù hợp.
| Thông Tin chi tiết Dự Án | |||||||||||||||||||||||||||||||||||||||
|
|
||||||||||||||||||||||||||||||||||||||
-
Tiềm lực tài chính, uy tín và thương hiệu chủ đầu tư5
-
Vị trí thuận tiện, tiềm năng phát triển trong tương lai.5
-
Tiện ích dự án, thiết kế5
-
Pháp lý dự án đầy đủ, minh bạch, đáng tin cậy5
-
Mức giá bán hợp lý5
-
Tiềm năng tăng giá tương lai5
Giá dự án cùng khu vực
Dự án xung quanh
