Click vào để biết vị trí, tiện ích, quy hoạch... của dự án
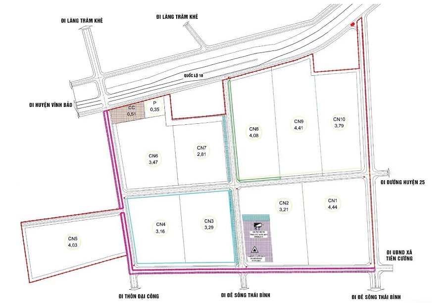
Phạm vi ranh giới và kết nối liên vùng CCN Tiên Cường 2 Hải Phòng
- Phía Bắc: giáp xã Đại Thắng, huyện Tiên Lãng và tuyến Quốc lộ 10 đi qua;
- Phía Nam: khu đất nông nghiệp và khu dân cư thôn Đại Công, xã Tiên Cường;
- Phía Đông: giáp khu đất nông nghiệp và khu dân cư bám dọc huyện lộ 25;
- Phía Tây: giáp khu dân cư xã Tiên Cường và khu đất nông nghiệp
Kết nối liên vùng
- Cách đường cao tốc Hà Nội – Hải Phòng khoảng 3km;
- Cách thị trấn Tiên Lãng khoảng 7km;
- Cách thị trấn An Lão khoảng 7,4km;

Quy mô CCN Tiên Cường 2 Hải Phòng
| Tổng diện tích | 48,7ha |
| Ngành nghề ưu tiên | - Công nghiệp cơ khí; - Điện tử, điện lạnh, viễn thông, CNTT và công nghệ cao; - Sản xuất sản phẩm hỗ trợ công nghiệp công nghệ cao; - Công nghiệp sản xuất thiết bị điện; - Công nghiệp sản xuất vật liệu xây dựng; - Công nghiệp nhẹ (thực phẩm; may mặc; giày dép; văn phòng phẩm; chế biến nông sản …). |

Phối cảnh CCN Tiên Cường 2
Hệ thống cơ sở hạ tầng CCN Tiên Cường 2 Hải Phòng
- Hệ thống giao thông: Trục chính tuyến đường của CCN Tiên Cường 2 được bắt thẳng vào quốc lộ 10. Với chiều rộng đường 21m, cùng toàn bộ các tuyến đường nội bộ của Cụm công nghiệp đều được xây dựng theo quy chuẩn hiện đại.
- Hệ thống cấp điện: Công suất 2x40MVA.
- Nguồn cấp nước: Công suất: 3.650m3/ngày.đêm.
- Hệ thống viễn thông: Thiết kế hệ thống ống dẫn cáp để kết nối các nhà cung cấp dịch vụ kết nối cáp trong tương lai
- Hệ thống xử lý nước thải: Công suất: 1.700m3/ngày.đêm.
Trạm xử lý nước thải tập trung, công suất xử lý, đạt tiêu chuẩn cột A quy chuẩn QCVN 40:2011/BTNMT
- Hệ thống phòng cháy chữa cháy: Trang bị đầy đủ phương tiện và các thiết bị phòng cháy chữa cháy.
- Bưu chính viễn thông: Trang bị hệ thống bưu điện điện tử, viễn thông, chuyển phát nhanh trong nước và quốc tế.

Pháp lý CCN Tiên Cường 2 Hải Phòng
CCN Tiên Cường 2 được UBND Tp.Hải Phòng chấp thuận chủ trương đầu tư vào ngày 18/1/2022.
Ngày 10/5/2022, UBND huyện Tiên Lãng phê duyệt quy hoạch chi tiết tỉ lệ 1/500.
Ngày 11/8/2023, theo Quyết định chấp thuận điều chỉnh chủ trương đầu tư (lần thứ nhất) của UBND TP.Hải Phòng đã điều chỉnh tổng vốn đầu tư của dự án từ trên 450 tỷ đồng lên 699,380 tỷ đồng.
Đến ngày 5/12/2023, dự án được Bộ Tài nguyên và Môi trường ban hành quyết định phê duyệt kết quả thẩm định báo cáo đánh giá tác động môi trường.
Tiến độ CCN Tiên Cường 2 Hải Phòng
Ngày 18/5/2024: Đã khởi công dự án Đầu tư xây dựng và kinh doanh, vận hành, quản lý công trình kết cấu hạ tầng CCN Tiên Cường 2.
Ngày 11/5/2025, dự án đã hoàn thành công tác thi công và bắt đầu thu hút nhà đầu tư thứ cấp.
Tính đến đầu tháng 5/2025, CCN Tiên Cường II thu hút được 8 nhà đầu tư trong và ngoài nước: Trung Quốc, Hàn Quốc, Hồng Kông (Trung Quốc), Đài Loan (Trung Quốc)... thuê mặt bằng. CCN có diện tích mặt bằng được lấp đầy đạt 52% tổng diện tích đất cho thuê.

Hình thực tế tại CCN Tiên Cường 2
Giá thuê và các chi phí tham khảo tại CCN Tiên Cường 2 Hải Phòng
- Giá thuê cơ sở hạ tầng: 120 USD/m2/chu kỳ thuê (chưa bao gồm VAT)
- Phí quản lý: 0,66 USD/m2/năm (chưa bao gồm VAT)
- Đơn giá nước sạch: 0,73 USD/m3
- Phí xử lý nước thải: 0,73 USD/m3
- Đơn giá điện: Áp dụng biểu giá
Lưu ý: Các mức phí trên chỉ mang tính tham khảo và có thể thay đổi theo chính sách của chủ đầu tư và thời điểm cụ thể.
Thông tin chủ đầu tư CCN Tiên Cường 2 Hải Phòng
Công ty Cổ phần đầu tư hạ tầng Khu công nghiệp Tiến Phát thành lập ngày 19/6/2020 có địa chỉ trụ sở chính tại Tầng 1, tòa nhà Taiyo, số 97 Bạch Đằng, phường Hồng Bàng, Tp. Hải Phòng. Người đại diện theo pháp luật là ông Phạm Quang Khang, chức danh: Tổng giám đốc.
Ngành nghề đăng ký kinh doanh chính của công ty là xây dựng công trình kỹ thuật dân dụng khác.
Thông tin nhanh dự án CCN Tiên Cường 2 Hải Phòng
| Dự án: Cụm công nghiệp Tiên Cường 2 | Ngày khởi công: 18/5/2024 |
| Vị trí: xã Quyết Thắng, TP Hải Phòng | Thời hạn vận hành: 2022 - 2072 |
| Tổng diện tích: 48,7ha | Tổng vốn đầu tư: 699,380 tỷ đồng |
| Chủ đầu tư: Công ty Cổ phần đầu tư hạ tầng Khu công nghiệp Tiến Phát | Tỷ lệ lấp đầy: 52% |
Đăng ký kênh Youtube CafeLand để theo dõi các video bất động sản mới nhất!
- Mua bán cho thuê dự án
- Tin rao bán Khu công nghiệp Cụm công nghiệp Tiên Cường 2
- Tin rao cho thuê Khu công nghiệp Cụm công nghiệp Tiên Cường 2
trên toàn quốc và một số ngân hàng
để hỗ trợ bạn tìm một ngôi nhà phù hợp.
| Thông Tin chi tiết Dự Án | ||||||||||||||||||||||||||||||||
|
|
|||||||||||||||||||||||||||||||
-
Tiềm lực tài chính, uy tín và thương hiệu chủ đầu tư5
-
Vị trí thuận tiện, tiềm năng phát triển trong tương lai.5
-
Tiện ích dự án, thiết kế5
-
Pháp lý dự án đầy đủ, minh bạch, đáng tin cậy5
-
Mức giá bán hợp lý5
-
Tiềm năng tăng giá tương lai5
Giá dự án cùng khu vực
Dự án xung quanh
