Click vào để biết vị trí, tiện ích, quy hoạch... của dự án
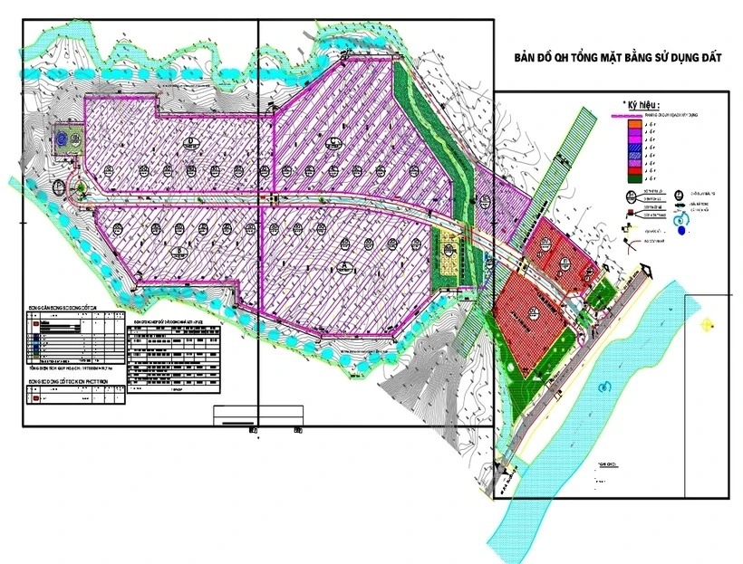
Phạm vi ranh giới và kết nối liên vùng CCN Tà Súc giai đoạn 3
Thôn Định Trường, xã Vĩnh Quang, huyện Vĩnh Thạnh, tỉnh Bình Định. Khu đất có giới cận:
- Phía Đông giáp đất sản xuất nông nghiệp;
- Phía Tây giáp đất rừng sản xuất;
- Phía Nam giáp đường dẫn vào Công ty TNHH Tinh bột sắn Nhiệt Đồng Tâm Vĩnh Thạnh và đất trồng sẵn luân canh lạc, ngô;
- Phía Bắc giáp đất trồng màu, đất nghĩa trang và khu dân cư Định Trường.
Vị trí chiến lược và kết nối vùng
- Cách sân bay Phù Cát khoảng 30km;
- Cách cảng biển Quy Nhơn khoảng 32km;
- Cách ga đường sắt Diêu Trì khoảng 25km.
Quy mô CCN Tà Súc giai đoạn 3
| Tổng diện tích | 35ha |
| Ngành nghề thu hút | - Công nghiệp cơ khí chế tạo; - Thiết bị điện; - Sản phẩm công nghệ cao; - May mặc; - Máy móc thiết bị xây dựng; - Thiết bị y tế; - Công nghiệp hỗ trợ; - Sản xuất, chế biến thực phẩm; - Sản xuất viên nén năng lượng; - Sản xuất phân bón hữu cơ, phân vi sinh phục vụ nông nghiệp sạch. |

Hệ thống cơ sở hạ tầng CCN Tà Súc giai đoạn 3
- Hệ thống cấp điện: Được kết nối với lưới điện quốc gia, đảm bảo cung cấp điện ổn định cho các doanh nghiệp hoạt động trong cụm công nghiệp.
- Hệ thống cấp nước: Công suất cấp nước cho toàn cụm công nghiệp khoảng 3.000 m3/ngày.đêm.
- Hệ thống xử lý nước thải: Trạm xử lý nước thải có công suất khoảng 1.500 m3/ngày.đêm.
- Hệ thống viễn thông: Được trang bị đầy đủ các dịch vụ viễn thông, internet tốc độ cao, đáp ứng nhu cầu liên lạc và quản lý của các doanh nghiệp.
- Hệ thống giao thông nội bộ: Đường nội bộ được thiết kế phù hợp với tiêu chuẩn kỹ thuật, đảm bảo lưu thông thuận tiện cho xe tải và xe container.
Pháp lý CCN Tà Súc giai đoạn 3
Ngày 13/3/2024, UBND tỉnh Bình Định có văn bản số 1830/UBND-KT về việc chấp thuận chủ trương mở rộng CCN Tà Súc huyện Vĩnh Thạnh (giai đoạn 3).
Ngày 20/6/2025, UBND tỉnh Bình Định đã có Quyết định 2130/QĐ-UBND năm 2025 về việc mở rộng Cụm công nghiệp Tà Súc, huyện Vĩnh Thạnh.

Trước đó, UBND tỉnh đã phê duyệt quy hoạch Cụm công nghiệp Tà Súc tại xã Vĩnh Quang với diện tích 40ha. Trong đó, Cụm công nghiệp Tà Súc giai đoạn 1 rộng 19,7ha hiện đang do Công ty Cổ phần Xây lắp điện Tuy Phước làm chủ đầu tư; Cụm công nghiệp Tà Súc giai đoạn 2 rộng 16,04ha do Ban Quản lý Dự án đầu tư xây dựng và Phát triển quỹ đất huyện Vĩnh Thạnh làm chủ đầu tư.
Tiến độ CCN Tà Súc giai đoạn 3
- Ngày 19/12/2025, Công ty Cổ phần Bất động sản HA Group tổ chức Lễ động thổ Cụm Công nghiệp Tà Súc giai đoạn 3 tại xã Vĩnh Quang
Tiến độ thực hiện dự án đầu tư xây dựng hạ tầng kỹ thuật:
- Tháng 12 năm 2025: Hoàn thành các thủ tục pháp lý đầu tư dự án.
- Tháng 01 năm 2026: Khởi công xây dựng dự án.
- Tháng 12 năm 2026: Hoàn thành và đưa dự án vào hoạt động.
Thời hạn hoạt động của dự án: 50 năm.
Giá thuê và các chi phí dự kiến tại CCN Tà Súc giai đoạn 3
- Giá thuê cơ sở hạ tầng: 60 USD/m2 (chưa bao gồm VAT)
- Phí quản lý: 0,5 USD/m2/năm (chưa bao gồm VAT)
- Phí xử lý nước thải: Theo quy định của nhà cung cấp
- Đơn giá nước: Theo quy định của nhà cung cấp
- Đơn giá điện: Theo quy định của EVN
Lưu ý: Các mức phí trên chỉ mang tính tham khảo và có thể thay đổi theo chính sách của chủ đầu tư và thời điểm cụ thể.
Thông tin chủ đầu tư CCN Tà Súc giai đoạn 3
Chủ đầu tư xây dựng hạ tầng kỹ thuật CCN Tà Súc giai đoạn 3 là Công ty cổ phần Bất động sản HA Group. Địa chỉ trụ sở chính: Tầng 02, nhà 31-33 đường Tây Sơn, thành phố Quy Nhơn, tỉnh Bình Định.
Doanh nghiệp này thành lập ngày 31/03/2025. Kinh doanh bất động sản, quyền sử dụng đất thuộc chủ sở hữu, chủ sử dụng hoặc đi thuê (ngành nghề chính). Người đại diện theo pháp luật là ông Trần Văn Đoàn, chức danh: Giám đốc.
Thông tin nhanh dự án CCN Tà Súc giai đoạn 3
| Dự án: CCN Tà Súc giai đoạn 3 | Ngày khởi công: 19/12/2025 |
| Vị trí: xã Vinh Quang, tỉnh Gia Lai | Thời hạn vận hành: 2025 - 2075 |
| Tổng diện tích: 35ha | Tổng vốn đầu tư: 175,5 tỷ đồng |
| Chủ đầu tư: Công ty cổ phần Bất động sản HA Group | Tỷ lệ lấp đầy: |
Đăng ký kênh Youtube CafeLand để theo dõi các video bất động sản mới nhất!
- Mua bán cho thuê dự án
- Tin rao bán Khu công nghiệp Cụm công nghiệp Tà Súc giai đoạn 3
- Tin rao cho thuê Khu công nghiệp Cụm công nghiệp Tà Súc giai đoạn 3
trên toàn quốc và một số ngân hàng
để hỗ trợ bạn tìm một ngôi nhà phù hợp.
| Thông Tin chi tiết Dự Án | ||||||||||||||||||||||||||||||||
|
|
|||||||||||||||||||||||||||||||
-
Tiềm lực tài chính, uy tín và thương hiệu chủ đầu tư5
-
Vị trí thuận tiện, tiềm năng phát triển trong tương lai.5
-
Tiện ích dự án, thiết kế5
-
Pháp lý dự án đầy đủ, minh bạch, đáng tin cậy5
-
Mức giá bán hợp lý5
-
Tiềm năng tăng giá tương lai5
Giá dự án cùng khu vực
Dự án xung quanh
