Click vào để biết vị trí, tiện ích, quy hoạch... của dự án
Ranh giới và kết nối liên vùng của CCN Hưng Nhân Hưng Yên
Khu vực nghiên cứu dự án thuộc địa bàn xã Long Hưng và Ngự Thiên, tỉnh Hưng Yên (thị trấn Hưng Nhân và xã Tân Hòa, huyện Hưng Hà, tỉnh Thái Bình cũ), cụ thể:
- Phía Bắc giáp với tỉnh Hưng Yên, Hải Dương và Hải Phòng
- Phía Tây và Tây Nam giáp với tỉnh Nam Định và Hà Nam
- Phía Đông giáp với vịnh Bắc Bộ
Kết nối vùng:
- Nằm trên quốc lộ 39A gần quốc lộ 1A, 1B và cao tốc Hà Nội - Hải Phòng
- Cách trung tâm thành phố Hà Nội khoảng 70km
- Cách sân bay quốc tế Nội Bài khoảng 92km
- Cách cảng Hải Phòng khoảng 75km
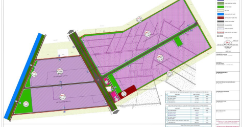
Quy mô dự án CCN Hưng Nhân Hưng Yên

Quy hoạch tổng mặt bằng sử dụng đất tại dự án CCN Hưng Nhân
| Tổng diện tích | 44ha |
| Ngành nghề | - Cơ khí lắp ráp, sản xuất phụ tùng, linh kiện điện tử; - Sản xuất tiêu dùng, hàng thủ công mỹ nghệ; - Công nghiệp dệt may; - Chế biến thực phẩm và các sản phẩm nông nghiệp và một số ngành công nghiệp khác... |
Quy mô CCN Hưng Nhân

Phối cảnh dự án
Hệ thống cơ sở hạ tầng CCN Hưng Nhân Hưng Yên
Hệ thống đường giao thông
- Các trục đường chính trong cụm công nghiệp rộng 32 m – 4 làn
- Các trục đường nhánh trong cụm công nghiệp rộng 23 m – 2 làn
Hệ thống cung cấp điện
- Nguồn điện cung cấp đến cụm công nghiệp được lấy từ trạm biến áp 110/35/22KV. Mạng lưới điện cao thế được cung cấp dọc giao thông nội bộ trong cụm công nghiệp.
Hệ thống cung cấp nước
- Nước sạch được cung cấp với công suất 3.000 m3 mỗi ngày từ nhà máy nước sạch thị trấn Hưng Nhân. Nước được cung cấp tới hàng rào nhà máy bằng hệ thống ống cấp nước tiêu chuẩn quốc tế.
Hệ thống xử lý nước và rác thải
- Nước thải được thu gom về nhà máy nước thải của cụm công nghiệp xử lý đạt tiêu chuẩn nước A (QCVN 40:2011/BTNMT) trước khi xả ra hệ thống chung của cụm công nghiệp. Nhà máy nước thải được xây dựng với công suất xử lý 1000m3/ngày – đêm
Hệ thống thông tin liên lạc
- Được lắp đặt hệ thống cáp thông tin liên lạc ngầm và được cung cấp tới hàng rào của nhà máy bởi hệ thống cáp tiêu chuẩn quốc tế.
- Mọi nhu cầu về thông tin liên lạc được đảm bảo và có khả năng cung cấp mọi dịch vụ cần thiết như: Tổng đài riêng, điện thoại quốc tế, hội thảo từ xa, kênh thuê riêng, internet tốc độ cao, email,vv…
Pháp lý dự án CCN Hưng Nhân Hưng Yên
Ngày 21/8/2020, UBND tỉnh Thái Bình ban hành Quyết định số 2484/QĐ-UBND về việc phê duyệt chủ trương đầu tư Dự án đầu tư xây dựng kinh doanh hạ tầng Cụm công nghiệp Hưng Nhân (phần mở rộng).
Tiến độ CCN Hưng Nhân Hưng Yên
Đến tháng 1/2026, CCN Hưng Nhân đã thu hút 20 nhà đầu tư thứ cấp vào đầu tư chủ yếu ở các lĩnh vực như: may mặc, điện tử, sản xuất kim hoàn, đồ chơi, cơ khí… đạt tỷ lệ lấp đầy 100% diện tích theo quy hoạch.

Hình ảnh thực tế tại dự án
Giá thuê dự kiến CCN Hưng Nhân Hưng Yên
- Giá thuê cơ sở hạ tầng: 90 USD/m2 (chưa bao gồm VAT)
- Đơn giá xử lý nước thải: 0,4 USD/m3
- Giá nước sạch: 0,5 USD/m3.
- Giá điện: Theo quy định của nhà nước
- Chi phí quản lý hạ tầng: 0,5 USD/m2/năm (chưa bao gồm VAT)
Lưu ý: Các mức phí trên chỉ mang tính tham khảo và có thể thay đổi theo chính sách của chủ đầu tư và thời điểm cụ thể.
Thông tin chủ đầu tư dự án CCN Hưng Nhân Hưng Yên
Chủ đầu tư dự án là Công ty cổ phần Đầu tư QH Land hoạt động từ năm 2019, địa chỉ trụ sở là Lô DVCN-2, cụm công nghiệp Hưng Nhân, xã Long Hưng, tỉnh Hưng Yên. Người đại diện pháp luật là ông Trần Viết Thanh. Doanh nghiệp hoạt động chính trong lĩnh vực kinh doanh bất động sản, quyền sử dụng đất thuộc chủ sở hữu, chủ sử dụng hoặc đi thuê.
Thông tin nhanh dự án CCN Hưng Nhân Hưng Yên
| Dự án: CCN Hưng Nhân | Ngày khởi công: |
| Vị trí: Xã Long Hưng và Ngự Thiên, tỉnh Hưng Yên | Thời hạn vận hành: 2020-2069 |
| Tổng diện tích: 44ha | Tổng vốn đầu tư: |
| Chủ đầu tư: Công ty cổ phần Đầu tư QH Land | Tỷ lệ lấp đầy: 100% |
Đăng ký kênh Youtube CafeLand để theo dõi các video bất động sản mới nhất!
- Mua bán cho thuê dự án
- Tin rao bán Khu công nghiệp Cụm công nghiệp Hưng Nhân
- Tin rao cho thuê Khu công nghiệp Cụm công nghiệp Hưng Nhân
trên toàn quốc và một số ngân hàng
để hỗ trợ bạn tìm một ngôi nhà phù hợp.
| Thông Tin chi tiết Dự Án | ||||||||||||||||||||||||||||||||
|
|
|||||||||||||||||||||||||||||||
-
Tiềm lực tài chính, uy tín và thương hiệu chủ đầu tư5
-
Vị trí thuận tiện, tiềm năng phát triển trong tương lai.5
-
Tiện ích dự án, thiết kế5
-
Pháp lý dự án đầy đủ, minh bạch, đáng tin cậy5
-
Mức giá bán hợp lý5
-
Tiềm năng tăng giá tương lai5
Giá dự án cùng khu vực
Dự án xung quanh
