Click vào để biết vị trí, tiện ích, quy hoạch... của dự án
Quy mô dự án Cloud Reserve Central Tuy Hoa

Phối cảnh dự án Cloud Reserve Central Tuy Hoa
|
Tổng diện tích |
18.496,69m2 |
|
Số lượng sản phẩm |
16 căn biệt thự đơn lập; 118 nhà liền kề |
Quy mô dự án Cloud Reserve Central Tuy Hoa

Mặt bằng dự án Cloud Reserve Central Tuy Hoa
Sản phẩm dự án Cloud Reserve Central Tuy Hoa
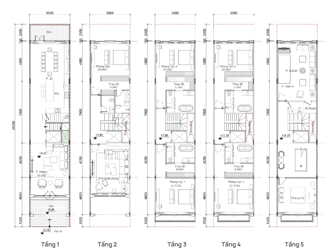
Biệt thự
Diện tích đất: 287,5-300m2
Diện tích sàn: 472,8-480,8m2
Tầng cao: 3 tầng 1 tum


Thiết kế biệt thự

Phối cảnh biệt thự
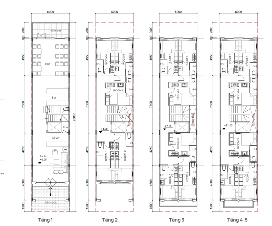
Shophouse
Diện tích: 97,5-125m2
Diện tích sàn: 326,4-542,2m2
Tầng cao: 4 tầng 1 tum


Thiết kế shophouse
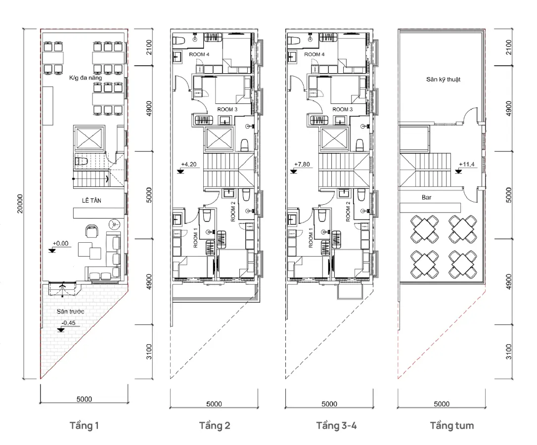
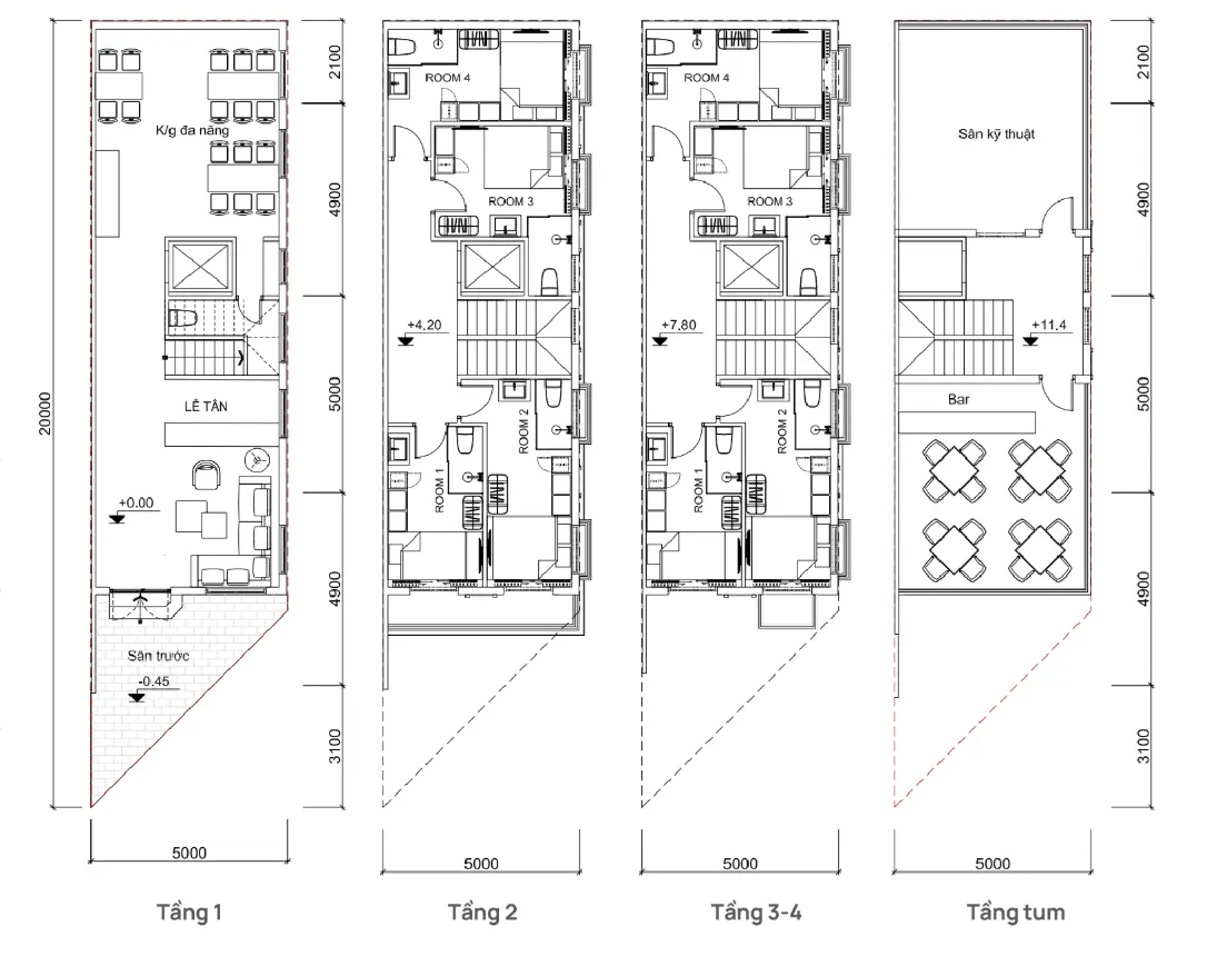
Nhà liền kề
Diện tích: 97,5-125m2
Diện tích sàn: 326,4-542,2m2
Tầng cao: 5 tầng 1 tum


Thiết kế nhà liền kề

Phối cảnh nhà liền kề
Tiện ích dự án Cloud Reserve Central Tuy Hoa
Cư dân Cloud Reserve Central Tuy Hoa được tận hưởng các tiện ích ngoại khu với thương mại, sức khỏe, giáo dục quốc tế...
Pháp lý dự án Cloud Reserve Central Tuy Hoa
Dự án có tên pháp lý là khu dân cư đô thị liền kề phía Bắc đường Trần Phú (đợt 1 – giai đoạn 1).
Quyết định số 3905/QĐ-UBND ngày 15/8/2019 về việc phê duyệt điều chỉnh QHCT phân lô sử dụng đất tỷ lệ 1/500 dự án Khu dân cư đô thị liền kề phía Bắc đường Trần Phú (giai đoạn 1)
Quyết định số 153/QĐ-UBND ngày 16/02/2023 của UBND tỉnh Phú Yên về việc chấp thuận chủ trương đầu tư dự án Khu dân cư đô thị liền kề phía Bắc đường Trần Phú (đợt 1 – giai đoạn 1); Quyết định số 823/QĐ-UBND ngày 03/07/2023 của UBND tỉnh Phú Yên về việc chấp thuận điều chỉnh chủ trương đầu tư.
Tiến độ dự án Cloud Reserve Central Tuy Hoa
Dự án chính thức khởi công ngày 19/12/2025.
Giá bán tham khảo:
Shophouse: 140 triệu đồng/m2
Nhà liền kề: 87 triệu đồng/m2
Biệt thự: 83 triệu đồng/m2
.png)
Vị trí dự án Cloud Reserve Central Tuy Hoa
Thông tin chủ đầu tư dự án Cloud Reserve Central Tuy Hoa
Chủ đầu tư dự án là Công ty Cổ phần Việt Mỹ Phú Yên, thành viên Tập đoàn Cloud Gate, hoạt động từ năm 2021, địa chỉ trụ sở là căn BTH2-01, Thửa đất số 260, tờ bản đồ số 231-B, Lô B2, phường Bình Kiến, tỉnh Đắk Lắk. Người đại diện pháp luật là bà Đỗ Thanh Hoa. Doanh nghiệp hoạt động chính trong lĩnh vực kinh doanh bất động sản, quyền sử dụng đất thuộc chủ sở hữu, chủ sử dụng hoặc đi thuê.
Thông tin nhanh dự án Cloud Reserve Central Tuy Hoa
|
Dự án: Cloud Reserve Central Tuy Hoa |
Tổng diện tích: 18.496,69m2 |
|
Vị trí: Đường Trần Phú, phường Tuy Hòa, tỉnh Đắk Lắk |
Tổng vốn đầu tư: Hơn 443 tỷ đồng |
|
Loại hình: Biệt thự, liền kề, shophouse |
Năm khởi công: 19/12/2025 |
|
Chủ đầu tư: Công ty Cổ phần Việt Mỹ Phú Yên |
Năm hoàn thành: |
Đăng ký kênh Youtube CafeLand để theo dõi các video bất động sản mới nhất!
- Mua bán cho thuê dự án
- Tin rao bán Khu Đô Thị Cloud Reserve Central Tuy Hoa
- Tin rao cho thuê Khu Đô Thị Cloud Reserve Central Tuy Hoa
trên toàn quốc và một số ngân hàng
để hỗ trợ bạn tìm một ngôi nhà phù hợp.
| Thông Tin chi tiết Dự Án | |||||||||||||||||||||||||||||||||||||||||||||
|
|
||||||||||||||||||||||||||||||||||||||||||||
-
Tiềm lực tài chính, uy tín và thương hiệu chủ đầu tư5
-
Vị trí thuận tiện, tiềm năng phát triển trong tương lai.5
-
Tiện ích dự án, thiết kế5
-
Pháp lý dự án đầy đủ, minh bạch, đáng tin cậy5
-
Mức giá bán hợp lý5
-
Tiềm năng tăng giá tương lai5
Giá dự án cùng khu vực
Dự án xung quanh
